Fuse Wiring

Complete Wiring diagram blog networks: cars, motorcycle, fuse, electric etc

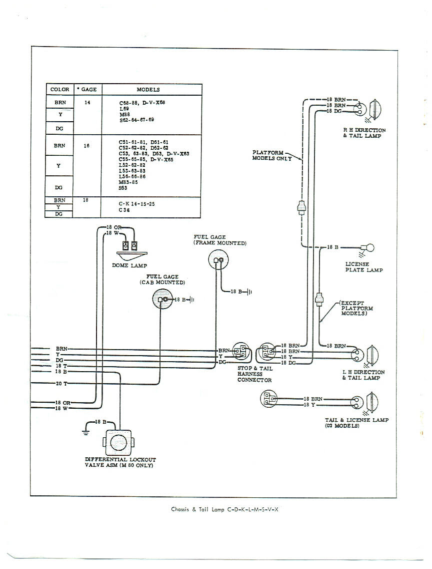
S10 Tail Light Wiring Diagram

Looking for a wiring diagram with color coding for 95 s10 tail lights. Autozone repair guide for your chassis electrical wiring diagrams wiring diagrams.

Chevy S10 Tail Light Wiring Harness Cap Tips Electrical Wiring

Need a wiring diagram for a chevy s10.

S10 tail light wiring diagram. Diagram 2000 chevy blazer brake line diagram 2000 chevy s10 tail light. Your power starts at the brake light fusecheck with a test lightthen proceed to stop light switch on brake pedal under dashone wire will be hot when when you check it with your test light the other wont be until you press down the brake pedal then the power flows through to the second wireif no power to second wire replace switchif. Today we are going to be installing tow ready t one connector part number 118359 on our 2002 chevy s 10.

Looking for a wiring diagram with color coding for 95 s10 tail lights answered by a verified chevy mechanic. Wiring diagrams for chevy fresh 1997 chevy s10 wiring diagram. Wiring colors and diagram for installing new 7 way on a vehicle typically the using a taillight converter to wire a 2008 chevy uplander for a european.

Chevy s10 engine wiring diagram 98 chevy k1500 tail light wiring diagram chevy colorado brake light wiring system. I have a 2000 chevy s10 pick up and my left blinkers blink realy fast so i replaced the tail light bulbs seeing the front ones. 1997 chevy s10 wiring diagram collections of tail light wiring diagram chevy elegant s10 88 harness 1997 wiring.

Autozone repair guide for your chassis electrical wiring diagrams wiring diagrams. So first we are going to gently pry back on our connector and separate our rear taillight. 94 chevy s10 blazer engine wiring diagrams wiring diagram s for.

Looking for a wiring diagram. I have an 89 chevy s10 i just rebuilt my motor and overhauled the complete truck just waiting on a new paint job. Starting at the tail light harness coming from the truck brown wire is for tail lights black is ground dark green is right turn and yellow is left turn the turn signal wires are also the brake light wires.

Many good image inspirations on our internet are the most effective image selection for 2001 s10 tail light wiring diagram. 1995 gmc headlight wiring diagram trusted wiring diagrams. Hope this helps you.

1995 chevy s10 wiring diagram wiring diagram rh komagoma co we collect plenty of pictures about 2001 s10 tail light wiring diagram and finally we upload it on our website. That sounds wierd but if you hit the brakes and turn one of the signals on the actual brake light will blink.

91c2 2001 S10 Brake Light Wiring Diagram Digital Resources

88 Gmc Jimmy Tail Light Wiring Tips Electrical Wiring

Chevy S10 Tail Light Wiring Harness Cap Tips Electrical Wiring

Chevy S10 Tail Light Wiring Harness Cap Tips Electrical Wiring

Chevy S10 Tail Light Wiring Harness Cap Tips Electrical Wiring

S10 Headlight Wiring Diagram Automotive Wiring Schematic

Chevy Truck Tail Light Wiring Colors Wiring Diagram Database

Chevy S10 Tail Light Wiring Harness Cap Tips Electrical Wiring

99 Chevy S10 Wiring Diagram Automotive Wiring Schematic

1958 Chevy Tail Light Wiring Wiring Diagram Database

Chevy S10 Tail Light Wiring Harness Cap Tips Electrical Wiring

1997 Chevrolet S10 Wiring Diagram Wiring Diagram General

Tail Light Wiring Diagram Wiring Diagram Symbols And Guide

1998 S10 Brake Light Wiring Diagram Wiring Diagram

2001 S10 Wiring Diagram Wiring Diagram General Helper

95 S10 Wiring Diagram Wiring Diagram Symbols And Guide

1965 Chevy Truck Fuel Pump Wiring Tips Electrical Wiring

1996 Chevy S10 Wiring Diagram Basic Electrical Wiring Theory

1994 S10 Wiring Harness Tips Electrical Wiring

95 S10 Wiring Diagram Reading Industrial Wiring Diagrams

93 S10 Tail Lamp Wiring Diagram

2002 S10 Heater Diagram Tips Electrical Wiring

2004 Gmc Tail Light Wiring Diagram Tips Electrical Wiring

85 S10 Tail Light Wiring Diagram Wiring Library

Wiring Diagram For Brake Lights Wiring Diagram Raw

Basic Brake Light Wiring Diagram Wiring Library

Chevy Truck Tail Light Wiring Wiring Diagram Database

Chevy S10 Tail Light Wiring Wiring Diagram

Chevy S10 Tail Light Wiring Wiring Library

S10 Tail Light Wiring Diagram Wiring Library

Guides 1999 Chevy S10 Tail Light Wiring Diagram Review 03

Guides 1999 Chevy S10 Tail Light Wiring Diagram Review 03

2003s 10 Tail Light Wiring Diagram Online Wiring Diagram

Ford Brake Light Wiring Diagram Wiring Diagram Symbols And

91 S10 Fuse Diagram Wiring Library

2002 S10 Tail Light Wiring Diagram Wiring Diagrams

1997 Chevy S10 Tail Light Wiring Diagram Got A Brake Out Fix

Chevy S10 Tail Light Wiring Harness Cap Basic Electrical

1998 Gmc Jimmy Wiring Tail Light Wiring Diagram General Helper

85 S10 Tail Light Wiring Diagram Wiring Library

E3b 01 S10 Tail Light Wiring Diagram Epanel Digital Books

Chevy S10 Tail Light Wiring Diagram Wiring Diagrams

Archived On 2019 Jetta Mk4 Tail Light Wiring 1995 240sx

1995s 10 Chevy Wiring Wiring Diagram Database

1998 Gmc Jimmy Wiring Tail Light Wiring Diagram General Helper

Chevy S10 Tail Light Wiring Diagram Wiring Diagrams

Guides 1999 Chevy S10 Tail Light Wiring Diagram Review 03

1fd 2000 Chevy S10 Tail Light Wiring Diagram Epanel

2000 S10 Zr2 Tail Light Wiring Diagram

01 S10 Tail Light Wiring Diagram Wiring Library

95 S10 Brake Light Wiring Diagram Wiring Library

02 S10 Wiring Diagram Wiring Diagram

Nissan Truck Tail Light Wiring Wiring Diagram General Helper

1999 Chevy Blazer Wiring Diagram Wiring Diagram Symbols

Tail Light Wiring Diagram Wiring Diagram Symbols And Guide

Chevy S10 Wiring Harness Diagram Wiring Diagram Load

Chevy S10 Wiring Harness Diagram Wiring Diagram Load

Tail Light Wiring Diagram Wiring Diagram General Helper

Tail Light Wiring Diagram Wiring Diagram Symbols And Guide

C45 2000 Chevy S10 Tail Light Wiring Diagram Epanel

Guides 1999 Chevy S10 Tail Light Wiring Diagram Review 03

Basic Tail Light Wiring Wiring Diagram General Helper

95 S10 Brake Light Wiring Diagram Fuel Pump Radio Starter 19

3ad 89 S10 Tail Light Wiring Diagram Epanel Digital Books

Guides 1999 Chevy S10 Tail Light Wiring Diagram Review 03

Tail Light Wiring Diagram Wiring Diagram Symbols And Guide

1995s 10 Chevy Wiring Wiring Diagram Database

C3d8 93 S10 Tail Lamp Wiring Diagram Epanel Digital Books

2015 Chevy Tail Light Wiring Colors Wiring Diagrams

Chevy S10 Wiring Harness Diagram Wiring Diagram Load

S10 Tail Light Wiring Diagram Wiring Diagrams

Chevrolet S10 Tail Light Wiring Diagram Wiring Library

92 S10 Turn Signal Wiring Diagram Wiring Diagrams

2000 Chevy S10 Tail Light Wiring Diagram Wiring Diagrams

S10 Trailer Wiring Harness Wiring Diagram General Helper

2003 S10 Tail Light Wiring Diagram Wiring Diagrams

Blazer Tail Light Wiring Diagram Wiring Diagrams

99bc5 1982 S10 Wiring Diagram Digital Resources

Diagram 2001 S10 Ignition Wiring Diagram Full Version Hd

Chevy Tail Light Wiring Colors Wiring Diagrams

S10 Brake Light Wiring Diagram Wiring Diagrams

1994 Chevy Truck Tail Light Wiring Wiring Diagrams

Chevy S10 Tail Light Wiring Wiring Diagrams

85 S10 Tail Light Wiring Diagram Wiring Diagrams

2003 S10 Tail Light Wiring Diagram Wiring Diagrams

2001 S10 Rear Lights Wiring Diagram Wiring Diagrams

Avenger Brake Light Wiring Diagram Wiring Diagrams

1989 Chevy Truck Tail Light Wiring Wiring Diagrams

2001 S10 Rear Lights Wiring Diagram Wiring Diagrams

1978 Chevy Truck Tail Light Wiring Harness Diagram Wiring

97 Gmc Tail Light Wiring Wiring Diagrams

1991 Toyota Pickup 22re Wiring Harness Diagram Wiring Diagrams